Residencia de estudiantes 912

Situación: Sant Cugat del Vallès, Barcelona
Proyecto: 2009-2010
Obra: 2010-11
Promotor: UTE d’Aro Compact-Habit Campus de Sant Cugat
Superficie construida: 3101m2
Autores: HARQUITECTES + DATAAE
Colaboradores: Toni Jiménez Anglès, Montse Fornés Guàrdia, Anna Tamayo
Equipo: Aleix Enguix (arquitecto técnico), Societat Orgànica (consultoría ambiental), DSM arquitectes (estructura), ÀBAC enginyers (instalaciones)
Fotografía: Adrià Goula
Premios: Ganador ‘SAIE Selection Contest 2011’ (IT) / Selección ‘Green Building Challenge 2011’ (FIN) / Premio ‘Green Building CE’ (GER) / Ganador ‘VI Premios NAN de arquitectura y construcción 2012’ (ES) / Ganador ‘Premis AJAC 2012’ / Finalista ‘Premios FAD 2013’, Barcelona (ES) / Finalista ‘XII Bienal de Arquitectura Española 2013’ (ES) / Premio ‘A+ Awards 2013’, mejor edificio sostenible (ES) / Finalista ‘BIGMAT Awards 2013’ (FR) / Mención ‘Premis Construmat’ 2013 / Finalista ‘Premis Habitatges Socials Catalunya’ 2013 / Finalista ‘VI Premios Enor 2014’ (ES) / Premio ‘ArchMarathon 2014’, categoría Vivienda Mixta (IT) / Premio ‘Ugo Rivolta’ 2015 / Premio ‘Mostra Arquitectura Vallès’ 2016
Cualificación energética: certificado Minergie, certificado Verde

Las nuevas viviendas universitarias se encuentran en la misma parcela que la Escuela técnica superior de arquitectura del Valles ETSAV en un contexto residencial de baja densidad en Sant Cugat del Valles. El concurso, organizado por la misma escuela y la UPC, planteaba tres grandes retos: Construir habitabilidad para estudiantes de arquitectura, cumplir la certificación energética suiza Minergie (bajar de los 38 kwh/m2a) y todo ello utilizado un nuevo sistema de construcción industrializada (sistema EMI de Compact Habit).

La posición del nuevo edificio pretende mantener el equilibrio entre los edificios existentes y los espacios exteriores así cómo priorizar la relación directa entre las viviendas y el campus con el suelo, propiciando el uso de los espacios exteriores y los recorridos horizontales, adaptados y sin ascensores. La topografía existente y su propia organización en doble barra permiten acercar todas las viviendas a la cota del suelo y potenciar un gran patio central donde, a modo de gran salón, se desarrollará la vida comunal. Un espacio que regala a las viviendas y al campus 1000m2 de espacios colectivos no previstos.

El programa de residencia para estudiantes de arquitectura permitía imaginar cohabitaciones intensas entre los usuarios, tanto a nivel individual, gracias a la flexibilidad interior de las viviendas, como a nivel colectivo, gracias al potencial de uso del patio como espacio de eventos sociales.

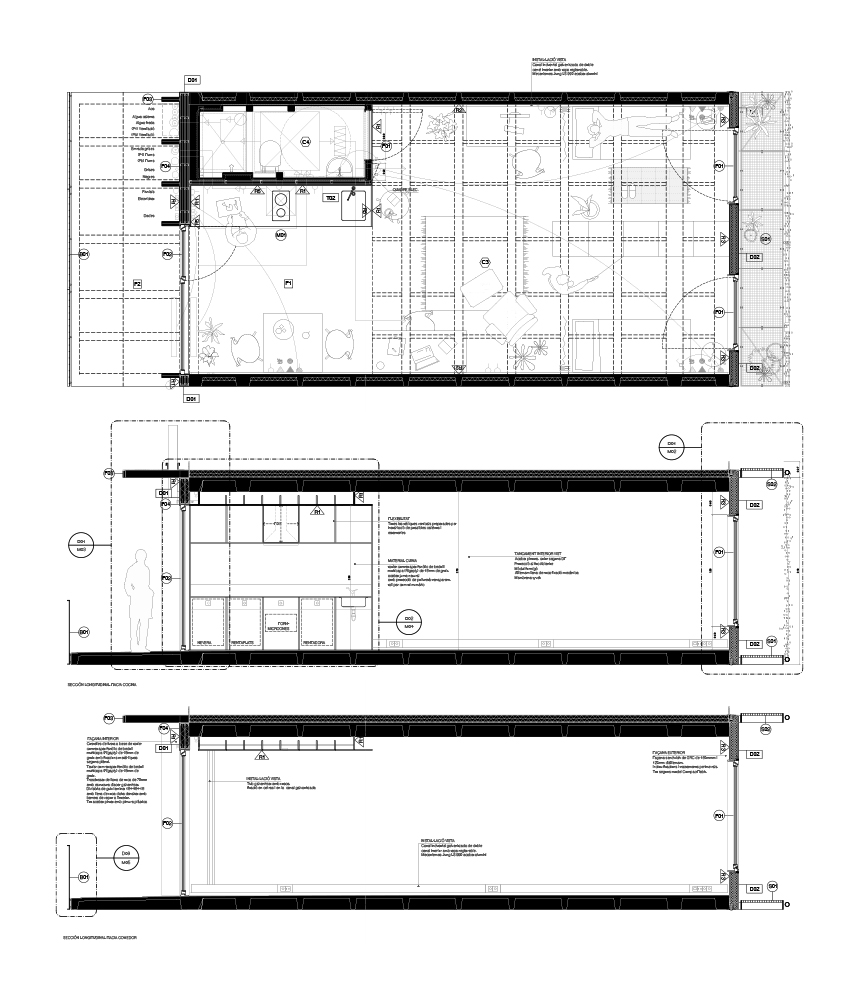
Rápidamente entendimos que no tenía sentido distribuir la tipología, que serian los estudiantes que con su investigación, su utilización y evolución durante años encontrarían, entre todos, el mayor potencial posible a 40m2. Nuestra propuesta intenta condicionar al mínimo la posible tipología bordeando los límites de la habitabilidad, ofreciendo solamente aquellos elementos mínimos y exigidos por normativa, intentando no acabar completamente la vivienda para abrir nuevos ámbitos de oportunidad; una mayor libertad en la apropiación del hábitat por parte del estudiante de arquitectura, un ahorro económico en acabados reinvertido en eficiencia energética y una expresividad más real y pedagógica de la construcción.

La utilización de un sistema industrializado ha sido determinante en la elaboración del proyecto condicionando en positivo muchas decisiones para conseguir optimizar y racionalizar el proceso industrial. El proyecto aceptó desde un inicio las reglas de juego de la construcción industrializada apostando por la utilización de un solo tipo de módulo de vivienda prefabricada y por sistemas constructivos coherentes a un montaje en taller intentando llevar esta lógica industrial lo más lejos posible. La industrialización permite ahorrar tiempo, mejores garantías de control de ejecución, implantar sistemas en seco y minimizar los residuos del proceso de obra con lo que se planteaba como una gran oportunidad en términos de diseño y sostenibilidad.

Se fabricaron 62 módulos de los cuales 57 son la misma tipología de vivienda y 5 corresponden a módulos especiales destinados a usos comunitarios y accesos. Una de las ventajas de la construcción industrializada radica en los tiempos de ejecución porque pueden ser más rápidos en la ejecución material y porqué además permite el solape de tareas simultáneas a taller y en obra. El tiempo de la construcción se desarrolló en las siguientes fases: 2 meses de trabajos in situ (cimentaciones, saneamiento, instalaciones generales…), 2 meses de producción de módulos a taller, 2 semanas de transporte y ensamblaje de los módulos en obra, 3 meses de acabados generales (cubierta, detalles de fachada, urbanización…etc. ).

La idea de un edificio no acabado tiene una incidencia determinante en el resultado material del edifico. Por un lado disminuye proporcionalmente su impacto ambiental simplemente por el hecho de hacer menos, de utilizar menos recursos materiales para la misma función y por otro lado ofrece la oportunidad de una nueva expresión material más sincera o directa donde la constructividad del edificio se evidencia con mucha claridad. El módulo de hormigón original se presenta mayormente desnudo aprovechando positivamente su materialidad, su textura y su inercia térmica. Los pocos revestimientos interiores que se han añadido están formados principalmente por paneles de madera contrachapada que habitualmente se utilizan para el encofrado de hormigón y que tienen la ventaja de ser un material renovable y que se presenta en junta seca y sin necesidad de acabado final. Los armarios de cocina, del mismo material, se han entregado sin puertas pero con muchos estantes móviles que permiten economizar pero que a su vez refuerzan y ayudan a expresar mejor el uso real de la vivienda. Las instalaciones se han resuelto vistas, donde ha sido posible, intentando ser muy didácticos en su implantación. La tecnología de las fachadas responde directamente a una lógica industrializada de construcción en seco, ligera y reversible donde predomina un importante grosor de aislamiento térmico combinado con membranas de estanqueidad transpirables y fachadas ventiladas. Las fachadas exteriores que están más expuestas a la intemperie se han resuelto con chapa galvanizada plegada para reducir el peso y la cantidad de material no renovable, mientras que en las fachadas interiores, que quedan mas protegidas, se ha apostado por seguir con los paneles de madera contrachapada. El ahorro en acabados se ha reinvertido en mejoras en eficiencia energética (más aislamiento, mejores acristalamientos, ventanas de madera…).

En la mayoría de los sistemas industrializados el impacto ambiental (consumo de energía, generación de residuos y emisiones de CO2 de producción de materiales) es mayor que en la construcción convencional. Pero en este caso, y gracias a criterios para el cierre del ciclo de los materiales aplicados en el ciclo de vida del edificio (disminución del uso de materiales por unidad de servicio, sustitución de los productos habituales por reciclados y reciclables, juntas secas y reversibles, mayor durabilidad de la estructura, etc.) ha podido verificarse, mediante un cálculo de impactos ambientales, que es significativamente inferior: hasta un 25% en emisiones de CO2 en fase de producción de materiales, una reducción del 50% de residuos en fase de construcción y hasta un 75% en generación de residuos en fase de deconstrucción.

Es un edificio que una vez terminada su vida útil podría ser enteramente desmontado, los módulos de hormigón y otros componentes podrían ser reutilizados y en última instancia prácticamente todos sus materiales y sistemas podrían ser reciclados, el edificio dejará de ser un producto para volver a ser recurso. Seguramente este potencial de reciclabilidad y reutilización es la característica mas potente de este sistema modular; su sistema de ensamblaje por apilamiento sin uniones ríguidas y totalmente desmontables permiten imaginar una futura reutilitzación del módulo de hormigón en otro edificio y para otros usos.

Aunque el proyecto ha apostado por la utilización sistemática de un único módulo tipológico se ha procurado buscar una expresión final que difumina la percepción de seriación y repetición del formato de modulo mediante la fragmentación y sobreposición de ordenes constructivos que organizan las fachadas en formatos más pequeños y más propios de los componentes constructivos y de sus funciones. La doble piel exterior también consigue un efecto integrador del conjunto sobreponiendo otra capa, un nuevo lenguaje vegetal, orgánico y cambiante que encuentra su composición formal en la función de protección solar.

El proyecto no intenta hacer alarde de su modularidad industrial sino optimizar y integrar la lógica modular dentro de un collage de tecnológica y habitabilidad.

Resumen de privacidad

Esta web utiliza cookies para que podamos ofrecerte la mejor experiencia de usuario posible. La información de las cookies se almacena en tu navegador y realiza funciones tales como reconocerte cuando vuelves a nuestra web o ayudar a nuestro equipo a comprender qué secciones de la web encuentras más interesantes y útiles.