Habitatges socials 2104

Situació: Palma de Mallorca, Illes Balears
Projecte: 2021-2022
Obra: 2022-2025
Superfície construïda: 1.610m2
Col·laboradors: Anna Burgaya, Ángeles Torres, Cynthia Rabanal, Victor Jorgensen
Equip: Xavier Suárez (arquitecte tècnic), DSM-arquitectes (estructura), M7 enginyers (enginyeria), Societat Orgànica (consultoria ambiental), MC acústica (enginyeria acústica), Joan Ramon Rosell (expert en construcció de calç)
Fotografia: Adrià Goula
Premis: Finalista Premios Casa de la Arquitectura 2025 (categoria Innovación), Finalista Premis d’Arquitectura CSCAE 2025, Premis de l’Arquitectura Tècnica de Mallorca 2025 (categoria Innovació)

A la parcel·la on es van construir els habitatges socials, destinats principalment a persones grans, hi havia un edifici que vam estar obligats a enderrocar perquè estava fora d’ordenació i en molt mal estat; no era possible conservar-lo. Es tractava d’una petita escola en desús, de tres plantes, construïda amb murs estructurals de marès i sostres de formigó i ceràmica.

L’estratègia diferencial del projecte va ser l’aprofitament del material de l’enderroc de l’antiga escola com a recurs per construir el nou edifici, practicant el que podríem denominar mineria urbana: on els recursos materials provenen de la pròpia parcel·la (urbana) com a resultat de la demolició de l’edifici preexistent.

Un cop conclòs l’enderroc i seleccionats els materials, es va aprofitar gairebé tota la runa de l’obra segons el tipus de material. En primer lloc, es van abocar els trossos d’elements ceràmics i de formigó (140 m³) als pous de fonamentació i murs del semisoterrani. En segon lloc, tot el marès (uns 160 m³) es va aprofitar per construir grans blocs (uns 3.000) de formigó ciclopi amb ciment i calç barrejat amb el marès reciclat (40% del volum dels blocs), compost per grans peces de fins a 30 cm de diàmetre, grava de marès i picadís (arena, també de marès). Cada bloc es tallava amb un gran disc-serra d’una llosa de 4 x 4 m2, de tal manera que las pedres reapareixien a les cares laterals dels blocs.

Els blocs de l’última planta, amb menys càrrega, són de formigó de calç, mentre que la resta de plantes combinen calç amb ciment. Aquests blocs, d’uns 135 cm de llarg, 42 cm d’altura i amb amplades variables per a cada planta (64, 54, 44 i 34 cm), es van prefabricar un cop acabat l’enderroc, abans d’iniciar la construcció del nou edifici. Això va permetre reduir considerablement la durada de les obres.

Els blocs es van apilar per construir uns murs de càrrega perpendiculars al carrer, on es recolzen els sostres de fusta contralaminada. A cada planta, els murs redueixen 10 cm el seu gruix, permetent el recolzament directe dels panells de fusta, facilitant la velocitat d’execució de l’estructura.

Perpendicularment als murs principals, uns murs de trava de 13 cm de gruix, construïts amb el mateix formigó ciclopi i procedents de tallar un bloc de 60 cm d’amplada en quatre de 13, traven l’estructura de tot l’edifici, conjuntament amb el nucli d’escales i ascensor.

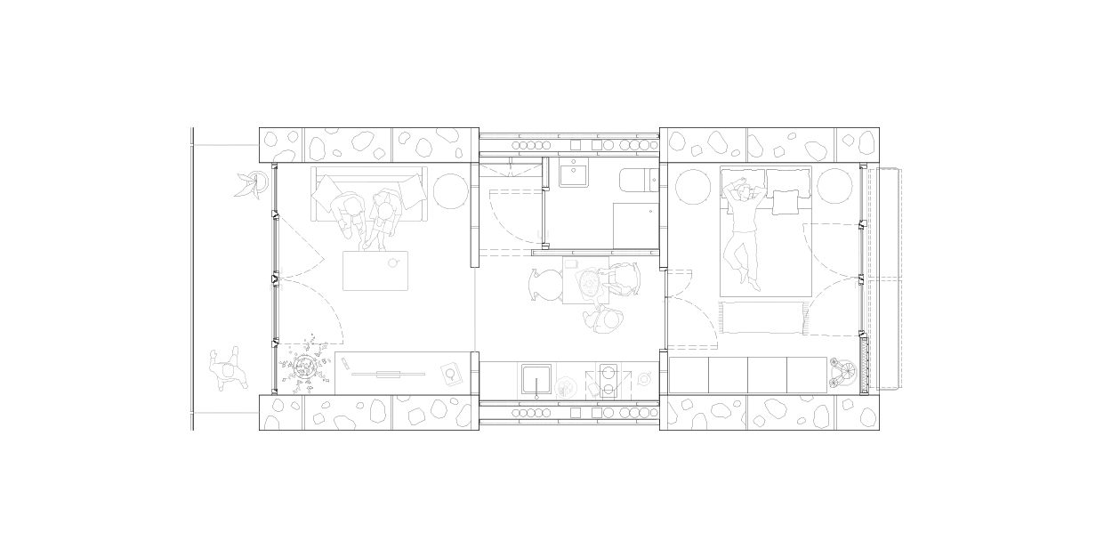
Tota l’organització espacial i programàtica de l’edifici respon al sistema estructural descrit; la composició de la planta s’organitza amb un nucli d’escales a la cantonada, que dóna accés a una passarel·la al jardí interior, des d’on s’accedeix a cadascun dels habitatges, tots passants excepte els de la planta semisoterrani, que, igual que els de l’àtic, tenen la meitat de profunditat que a les plantes tipus i utilitzen dues crugies estructurals per a cada apartament. Els apartaments del darrer pis disposen de grans terrasses. A cada planta hi ha algun espai comunitari (bugaderia, sales d’estar, etc.).

La façana mostra descarnadament el sistema estructural: els testers (verticals) dels murs de blocs prefabricats, que decreixen a cada planta i suporten els sostres de fusta (horitzontals) i, com a façana de cada apartament, de terra a sostre, balconeres de fusta amb una franja opaca lateral i persianes alacantines per protegir del sol d’aquest i oest.

Resum de la privadesa

Aquest lloc web utilitza galetes per tal de proporcionar-vos la millor experiència d’usuari possible. La informació de les galetes s’emmagatzema al navegador i realitza funcions com ara reconèixer-vos quan torneu a la pàgina web i ajuda a l'equip a comprendre quines seccions del lloc web us semblen més interessants i útils.